Телефон
Часы работы

ПН-СБ с 9:00 до 19:00 ч.

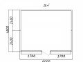
Модульное здание №4 (6 х 4,8 м.)

Комплектация «ЭКОНОМ»

Каркас: Обвязка из х-г металлического  швеллера 120х50х3 мм.  Угловые стойки из г-к уголка 75х75х5 мм. покраска в синий цвет.

Обрешетка: Стены, пол и потолок из обрезного бруса 40х100 мм.

Крыша: Плоская, герметично сварена из листового железа 1,5 мм., покраска в синий цвет.

Наружная отделка стен:   Профилированный оцинкованный лист С8-04 мм.

Внутренняя отделка стен:  Листы ДВП - 3мм. (оргалит).

Внутренняя отделка потолка: Листы ДВП - 3мм. (оргалит).

Пол: Лаги из обрезного бруса 40х100 мм. Черновой пол доска не обрезная 20-22 мм., Чистовой пол плиты ДСП 16-20 мм. покрытый линолеумом. Плинтус деревянный.

Окна: Стеклопакет ПВХ 1700х2000 мм. двухкамерный глухой (количество и расположение согласно эскизу).

Двери внутренние: Отсутствует.

Двери внешние:  Дверь ПВХ с замком и фурнитурой, цвет белый 800х2000 мм. (количество и расположение согласно эскизу).

Утеплитель: Стены, пол и потолок утепляются минеральной ватой URSA или KNAUF -50 мм.

ГидроизоляцияСтены, пол и потолок пленка ПВХ 60 микр.

Электропроводка:  В кабель канале ПВХ цвет белый, люминесцентные светильники ЛПО 2х18 -4 шт., выключатель -1 шт., розетки на 2,5 кВт. -4 шт., автоматы 10-16А в боксе ПВХ.

Комплектация «КОМФОРТ»

Каркас: Обвязка из х-г металлического  швеллера 120х50х3 мм.  Угловые стойки из г-к уголка 75х75х5 мм. покраска в синий цвет.

Обрешетка: Стены, пол и потолок из обрезного бруса 40х100 мм.

Крыша: Плоская, герметично сварена из листового железа 1,5 мм., покраска в синий цвет.

Наружная отделка стен:   Профилированный лист С8-04 мм. с полимерным покрытием цвета RAL 5005/3005/7004/9003/6005/1014.

Внутренняя отделка стен:  панели МДФ или Панели ПВХ.

Внутренняя отделка потолка: Вагонка ПВХ цвет белый.

Пол: Лаги из обрезного бруса 40х100 мм. Черновой пол доска не обрезная 20-22 мм., Чистовой пол плиты ДСП 16-20 мм. покрытый линолеумом. Плинтус ПВХ.

Окна: Стеклопакет ПВХ 1700х2000 мм. двухкамерный глухой (количество и расположение согласно эскизу).

Двери внутренние: Отсутствуют.

Двери внешние:  Дверь ПВХ с замком и фурнитурой, цвет белый 800х2000 мм. (количество и расположение согласно эскизу).

Утеплитель: Стены, пол и потолок утепляются минеральной ватой URSA или KNAUF -100 мм.

ГидроизоляцияСтены, пол и потолок пленка ПВХ 60 микр.

Электропроводка:  В кабель канале ПВХ цвет белый, люминесцентные светильники ЛПО 2х18 -4 шт., выключатели 1 шт., розетки на 2,5 кВт. -4 шт., автоматы 10-16А в боксе ПВХ.

Отопление: Конвектор с термостатом регулирования 1,5 кВт. -2 шт.

Накладка: Декоративная накладка на местах стыковки БК из металлического листа 0,4 мм. с полимерным покрытием цвета RAL 5005/3005/7004/9003/6005/1014.

Модульное здание №4 (6 х 4,8 м.) 1
001 – Строительные городки и вахтовые городки
Модульное здание №4 (6 х 4,8 м.) 2
002 – Штаб строительства двух этажный
Модульное здание №4 (6 х 4,8 м.) 3
003 – Быстровозводимое здание под офис
Модульное здание №4 (6 х 4,8 м.) 4
004 – Модульное здание общежитие для рабочих
Модульное здание №4 (6 х 4,8 м.) 5
005 – Модульное здание под штаб строительства
Модульное здание №4 (6 х 4,8 м.) 6
006 – Здание под офис, ИТР из блок-контейнеров
Модульное здание №4 (6 х 4,8 м.) 7
007 – Здание из бытовок для ИТР, офиса, мини штаба
Модульное здание №4 (6 х 4,8 м.) 8
008 – Модульное здание под ключ под офис для сотрудников
Модульное здание №4 (6 х 4,8 м.) 9
009 – Модуль под столовую
Модульное здание №4 (6 х 4,8 м.) 10
010 – Модуль прорабский
Модульное здание №4 (6 х 4,8 м.) 11
011– Модульное здание под склад
Модульное здание №4 (6 х 4,8 м.) 12
012 – Модульное здание из блок-контейнеров
Модульное здание №4 (6 х 4,8 м.) 13
013 – Модульное здание из металлических бытовок
Модульное здание №4 (6 х 4,8 м.) 14
014 – Модульное здание под магазин
Модульное здание №4 (6 х 4,8 м.) 15
015 – Модульное здание под офис
Модульное здание №4 (6 х 4,8 м.) 16
016 – Под офис продаж
Модульное здание №4 (6 х 4,8 м.) 17
017 – Модульное здание под ИТР
Модульное здание №4 (6 х 4,8 м.) 18
018 – Модульный дом жилой
Модульное здание №4 (6 х 4,8 м.) 19
019 – Модульный дом с крыльцом
Модульное здание №4 (6 х 4,8 м.) 20
020 – Под штаб строительства
Модульное здание №4 (6 х 4,8 м.) 21
021 – Модульный дом с террасой
Модульное здание №4 (6 х 4,8 м.) 22
022 – Модульный дачный дом с верандой
Модульное здание №4 (6 х 4,8 м.) 23
023 – Модульное здание двухэтажное
Модульное здание №4 (6 х 4,8 м.) 24
024 – Быстровозводимое здание двухэтажное

Дополнительная информация:

Все инженерные системы внутри модульного здания будут разведены и подключены.

Подключение инженерных систем с внешней стороны модульного здания (электричество, канализация, вода и т.д.) Заказчик выполняет своими силами и за свой счет.

Стоимость модульного здания указана без доставки и монтажных работ по объединению БК в модуль.

Стоимость доставки и монтажных работ модульного здания рассчитывается индивидуально, что бы уточнить стоимость доставки и монтажных работ на Ваш объект свяжитесь с нашими менеджерами. 

Заказать модульное здание 6х5 м. или узнать подробности, относительно модульных здании, можно позвонив по телефону или отправив заявку по электронному адресу,  указанному в разделе «КОНТАКТЫ».

Доставка

Доставка бытовок длина до 6 м.: г.Москва в пределах МКАД - 12000 руб.
(далее 100 руб. за каждый км.)

Доставка модульных здании рассчитывается индивидуально на каждое здание.

Подробнее
Доставка

ОСТАВЬТЕ ЗАЯВКУ НА КОНСУЛЬТАЦИЮ

ВЫ МОЖЕТЕ ОТПРАВИТЬ СВОЙ ПРОЕКТ НА РАСЧЕТ НАШИМ СПЕЦИАЛИСТАМ!

Контакты

Адрес: 105203, г. Москва, ул. 15-я Парковая, д. 16А
Тел.: +7 (495) 971-03-48
WhatsApp: +7(901) 547-63-48
Почта: info@natalika-studio.ru
График: с 9:00 до 19:00 ч. / ВС выходной
Адрес: 143103, Московская обл., г. Руза, ул. Социалистическая, д. 79
Тел.: +7 (495) 971-03-48
WhatsApp: +7(901) 547-63-48
Почта: modul-st@ya.ru
График: ежедневно с 10:00 до 19:00 ч.
ПРОИЗВОДСТВО схема проезда
Адрес: 143103, Московская обл., г. Руза, ул. Социалистическая, д. 79
Почта: info@natalika-studio.ru
График: ежедневно с 10:00 до 19:00 ч.